
蝶閥知識
閥門首頁 > 閥門知識 > 蝶閥知識 > 電動調節蝶閥主要技術參數
|
公稱通徑 |
50 |
65 |
80 |
100 |
125 |
150 |
200 |
250 |
300 |
350 |
400 |
450 |
500 |
|
|
流量系數 (CV) |
95 |
175 |
270 |
375 |
740 |
1400 |
2100 |
3250 |
4680 |
6200 |
8100 |
11000 |
15800 |
|
|
轉角(α°) |
90° |
|||||||||||||
|
工作電壓 |
220VAC、380VAC |
|||||||||||||
|
工作溫度范圍℃ |
-40~250 |
|||||||||||||
|
輸入信號 |
4~20mADC、220VAC、24VDC |
|||||||||||||
|
公稱壓力(MPa) |
1.6、4.0、6.4 |
|||||||||||||
|
連接形式及標準 |
對夾式、法蘭式 |
|||||||||||||
|
閥體材料 |
ZG25、304、316、316L |
|||||||||||||
|
閥芯材料 |
304、316、316L |
|||||||||||||
|
閥座材料 |
304、316、F4 |
|||||||||||||
|
流量特性 |
近似等百分比 |
|||||||||||||
|
泄漏等級 |
V、VI |
|||||||||||||
電動調節蝶閥執行機構
3610R系列電動執行器,是以AC220單相交流電源作為驅動電源,接受來自DCS、PLC系統或調節儀表操作器的DC4~20mA、DC0~10mA或DC1~5V控制信號的全電子式執行機構,該執行機構具備動作切換功能以及開度信號功能和手動等功能。大口徑蝶閥一般采用380VAC電動執行器,國內品牌如上海澳托克,揚州電力,天津二通等;國外品牌有英國羅托克、法國伯納德、德國西博思(西門子)等。
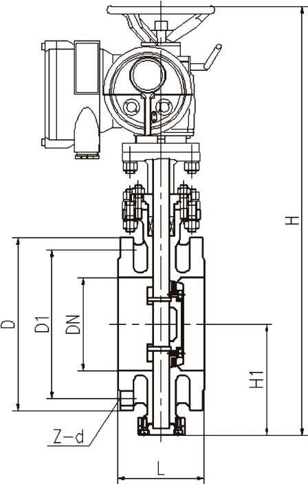
電動調節蝶閥外形尺寸及重量

單位:mm
|
公稱通徑 |
結構長度L |
外形尺寸 |
連接尺寸PN1.6MPa |
參考重量 |
||||
|
DN |
法蘭式 |
對夾式 |
H |
H |
D |
D1 |
Z-d |
(kg) |
|
50 |
108 |
43 |
112 |
530 |
165 |
125 |
4-18 |
19 |
|
65 |
112 |
46 |
115 |
530 |
185 |
145 |
4-18 |
22 |
|
80 |
114 |
49 |
120 |
565 |
200 |
160 |
8-18 |
25 |
|
100 |
127 |
56 |
138 |
600 |
220 |
180 |
8-18 |
28 |
|
125 |
140 |
64 |
164 |
640 |
250 |
210 |
8-18 |
43 |
|
150 |
140 |
70 |
185 |
705 |
285 |
240 |
8-22 |
50 |
|
200 |
152 |
71 |
200 |
775 |
340 |
295 |
12-22 |
64 |
|
250 |
165 |
76 |
243 |
945 |
405 |
355 |
12-26 |
99 |
|
300 |
178 |
83 |
250 |
1070 |
160 |
410 |
12-26 |
130 |
|
350 |
190 |
92 |
280 |
1140 |
520 |
470 |
16-26 |
188 |
|
400 |
216 |
102 |
305 |
1210 |
580 |
525 |
16-30 |
270 |
|
450 |
222 |
114 |
350 |
1335 |
640 |
585 |
20-30 |
350 |
|
500 |
229 |
127 |
380 |
1415 |
715 |
650 |
20-33 |
375 |
|
600 |
267 |
154 |
445 |
1605 |
840 |
770 |
20-36 |
560 |
|
700 |
292 |
165 |
480 |
1844 |
910 |
840 |
24-36 |
610 |
|
800 |
318 |
190 |
530 |
2040 |
1025 |
950 |
24-39 |
880 |
上一篇:電動蝶閥的優缺點及安裝維護要點有哪些 / 下一篇:電動蝶閥到底應該怎么判斷好壞